Коттедж, Ромашковая Показать на карте
Марьинский
Геленджик
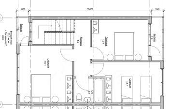
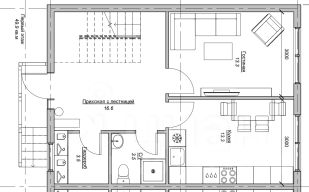
Продаю коттедж на две семьи. Расположен в городе курорте Геленджик в черте города - район Марьинский.Спальный район города окруженный лесом. Чудесный воздух, прекрасные виды на горы. До пляжей Голубой Бухты -7 минут на автотранспорте, до пляжей центральной набережной -12 минут.Инфраструктура:школа 8 -1 кмдетский садик -900 метровсупермаркеты Пятерочка, Магнит-800 метровпарикмахерские, аптеки-500 метровостановка -500 метровДом построен 2019 году из качественных материалов. Строили для себя и детей. Планировали проживать рядом. Дом и земельный участок -это один объект на 1 собственника, но в доме две изолированных части с отдельными входами, по сути- это дуплекс! СТОИМОСТЬ ЗА ВЕСЬ ДОМ: 28 000 000 руб, НО можно купить 1\2 часть! В каждой части дома:на 1- этаже кухня гостиная, санузел и выход на летнюю веранду.на 2 этаже -3 спальных комнаты ( 2 из них с балконом) , санузел и, возможен вход на мансардуцокольный этаж -55,8 кв м, отдельный вход с тыльной стороны дома. Полностью монолитный. Предполагался для сауны, бильярдной, винного погреба.ВСЕ КОММУНИКАЦИИ ЦЕНТРАЛЬНЫЕ ( свет -15 кв т, вода, канализация, газ).Участок практически ровной прямоугольной формы, имеет уклон, который грамотно использовали при строительстве дома. Фасад участка -26 метров ( по 13 метров на каждую часть дома). Двор выложен брусчаткой. Отличные подъездные пути к участку.1 взрослый собственник. Без обременений и запретов.Полное юридическое сопровождение.Звоните-отвечу на все Ваши вопросы.ID объекта в нашей базе: 1095
335 м2
2 этажа
- Показать контакты
- Добавить в избранное
335 м2
2 этажа
29 000 000
86 567 /м2
