Коттедж, Кипарисовая, 15 Показать на карте
Голубая бухта
Геленджик
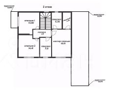
Продаю новый дом, в самом востребованном курортном поселке Дивноморское, ул. Кипарисовая 17 (10 километров от центра Геленджика). Дом расположен в новом районе поселка, у которого большие перспективы. Участки были сформированы уже в соответствии с новыми градостроительными нормами, ширина улицы перед участком 22 метра. Очень удобная локация, в шаговой доступности школа, детсад, магазины и 900 метров до набережной с благоустроенным пляжем.Дом построен из качественных стройматериалов и выдержан в одном стиле и цвете. Монолитный каркас с заполнением из керамзит блока, утеплён минеральной ватой 10 см, декоративная минерально гранитная штукатурка, фасад облицован клинкерной натуральной плиткой. Крыша - мягкая черепица. Стеклопакеты трёхкамерные . Входная дверь сейфовая, дорогая. Дом внутри оштукатурен и подготовлен к финишному ремонту. Первый этаж: кухня- столовая, гардеробная, прачечная, санузел, бойлерная. Второй этаж: мастер спальня с гардеробной и санузлом, две спальных комнаты и для них большой санузел. Коммуникации: электроэнергия 15 кВт (тариф сельский, это 2/3 от городского), вода центральная, канализация септик Евролос БИО, газ тех условия и готовый согласованный проект газификации дома, ориентировочно второй квартал 2025 года, ГРП в 120 метрах от участка.Придомовая территория: Тротуарная плитка, задняя часть двора имеет травяной газон шириной 1.5 метра вдоль всего забора, перед домом высажен розарий. Забор, калитка и распашные ворота выполнены из двойных ламелей (жалюзийного типа). Ворота распашные открытие с пульта. Навес для двух авто с датчиками света.Документы готовы к сделке. Дом строился по проекту и имеет всю разрешительную и техническую документацию. Арт. 115633210
160 м2
2 этажа
Бетонные блоки
- Показать контакты
- Добавить в избранное
160 м2
2 этажа
Бетонные блоки
30 000 000
187 500 /м2
