Коттедж, Просторный переулок Показать на карте
Голубая бухта
Геленджик
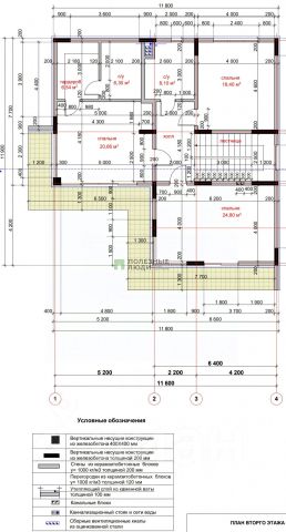
Предлагаем Вам купить дом в коттеджном поселке, район Голубая бухта. Дом на участке 5 соток, ИЖС, собственность. На участке бассейн.Общая площадь дома - 200 кв.м, с террасой - 261,7 кв.м. На 1 этаже: кухня-гостиная - 50 кв.м, комната, с/у, гардеробная, котельная. На 2 этаже: три спальни с гардеробными, 2 с/у, балкон по периметру - 39 кв.м.Дом монолитный, наружная отделка: керамогранит, алюминиевый композит и декоративная штукатурка, стеклянные ограждения балконов. Черновая отделка внутри. Можем предложить дизайнеров и специалистов отделочных работ.Коммуникации: электричество - 15 кВт, вода - скважина, биосептик, газ подведен к коттеджному поселку и будет подключен к домам.В коттеджном поселке, в котором расположен дом, 40 домов, закрытая территория с видеонаблюдением и охранным постом.Адрес объекта отсутствует на Яндекс картах, поэтому указан ближайший. Точный адрес: Краснодарский край, г. Геленджик, микрорайон Персиковый сад.Расстояние до центра города Геленджика - 11 км, до пляжа Голубая Бухта - 1,8 км.
261 м2
2 этажа
Монолит
- Показать контакты
- Добавить в избранное
261 м2
2 этажа
Монолит
71 000 000
271 303 /м2
