Если цена в объявлении изменится, мы сразу сообщим вам об этом на электронную почту.
Нажимая «Подписаться», вы соглашаетесь с правилами.
продам 3-к, Леселидзе, 812 800 000 ₽
26 фев
Дата публикации объявления
Обн. 26 апр
Дата обновления объявления
206 452 ₽/м²
Чистая продажа
Термин "Чистая продажа" означает, что в квартире никто не прописан или
есть куда выписаться и вывезти вещи. Это лучший вариант для покупателя.
Вероятность срыва сделки минимальна.
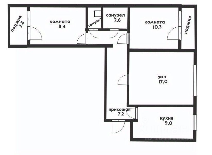
Продаю 3х к квартиру с панорамным видом на море, без ремонта с двумя лоджиями.
О квартире: Площадь 62 кв.м.,3 изолированные комнаты правильной квадратной формы и просторная кухня. Квартира светлая, без ремонта.2 лоджии с видом на море и город.
Расположение: Обжитой районе Геленджика. До моря и пляжа — 5 минут пешком. Рядом всё, что необходимо для жизни: школы, детские сады, рынок на Полевой, магазины, а также детские площадки и кафе на пляже. Возле дома достаточно парковочных мест.
Ценность для семьи: Просторная планировка с тремя изолированными комнатами и двумя лоджиями идеально подходит для комфортного проживания с детьми. Близость к морю и всей необходимой инфраструктуре значительно упрощает повседневную жизнь.
Продаю 3х к квартиру с панорамным видом на море, без ремонта с двумя лоджиями.
О квартире: Площадь 62 кв.м.,3 изолированные комнаты правильной квадратной формы и просторная кухня. Квартира светлая, без ремонта.2 лоджии с видом на море и город.
Расположение: Обжитой районе Геленджика. До моря и пляжа — 5 минут пешком. Рядом всё, что необходимо для жизни: школы, детские сады, рынок на Полевой, магазины, а также детские площадки и кафе на пляже. Возле дома достаточно парковочных мест.
Ценность для семьи: Просторная планировка с тремя изолированными комнатами и двумя лоджиями идеально подходит для комфортного проживания с детьми. Близость к морю и всей необходимой инфраструктуре значительно упрощает повседневную жизнь.
Ценность для инвесторов: 3х комнатных видовых квартир мало в городе, что делает это предложение уникальным и потенциально более ликвидным. Геленджик активно развивается как круглогодичный курорт, это даёт рост спроса на недвижимость и повышению ее стоимости. Отсутствие ремонта позволит сделать качественный ремонт и увеличить инвестиционную привлекательность объекта для последующей перепродажи или сдачи в аренду.