Если цена в объявлении изменится, мы сразу сообщим вам об этом на электронную почту.
Нажимая «Подписаться», вы соглашаетесь с правилами.
продам отдельностоящее здание, шоссе Сухумское, 10330 000 000 ₽
13 янв
Дата публикации объявления
Обн. 13 янв
Дата обновления объявления
52 606 ₽/м²
Параметры
Общая площадь6273 м2
Этаж1
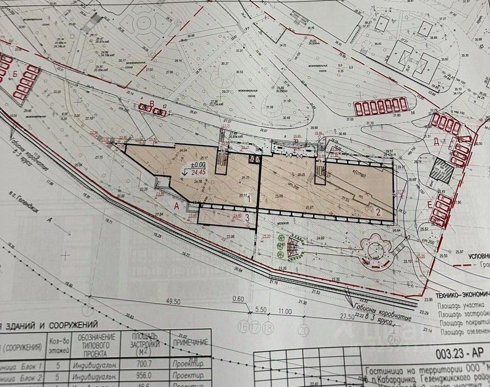
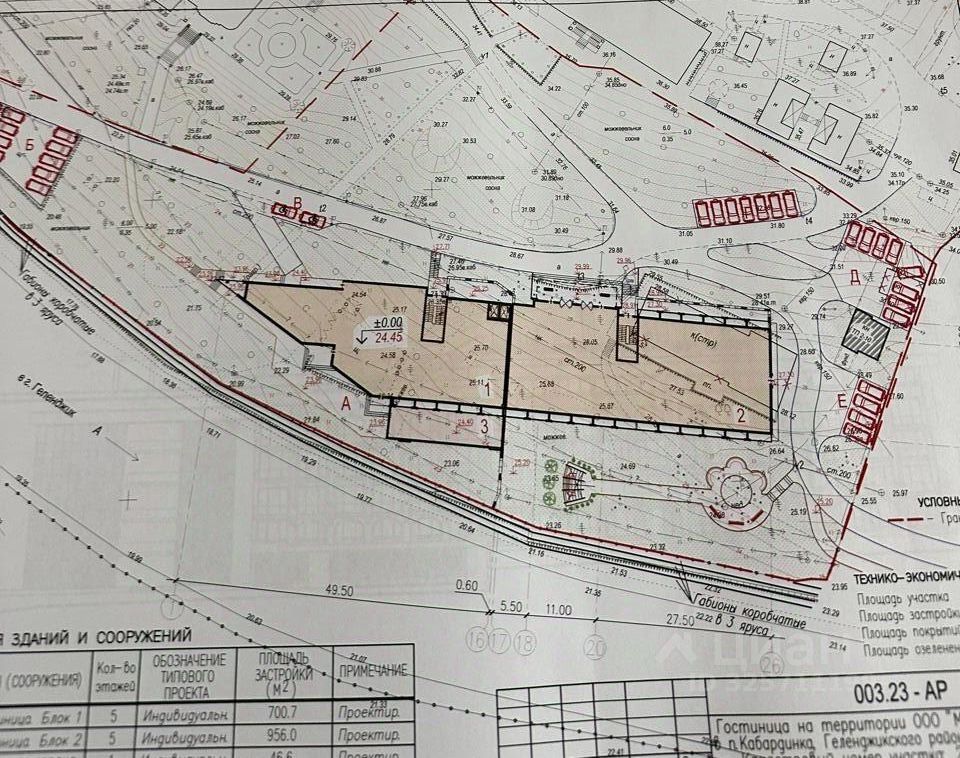
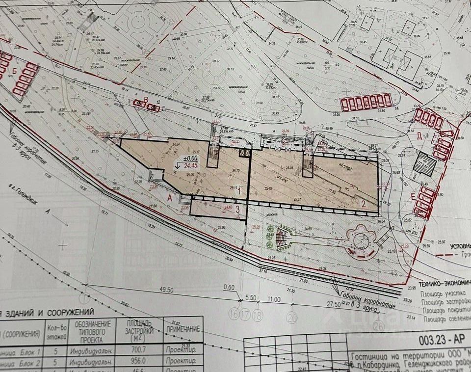
Продаётся объект незавершенным строительством готовность 35%, все техусловия и разрешения действующие. Гостиничный комплекс в Краснодарском крае, город Геленджик, село Кабардинка, площадь участка: 9979,0 кв. м., площадь застройки: 1920,0 кв. м. (19%), общая площадь здания: 6273,3 кв. м., в том числе: Площадь номеров гостиницы: 4033,1 кв. м. Площадь холлов, коридоров и лестниц здания: 1354,8 кв. м. Площадь служебных и технических помещений здания: 290,6 кв. м. Площадь летних помещений (террасы, балконы, лоджии, кровля): 1788,8 кв. м. Количество номеров гостиницы: стандарт: 152 номера, двухкомнатные: 9 номеров. Количество мест в гостинице: 170 мест. Площадь бассейна для взрослых: 160,0 кв. м. Площадь джакузи: 13,7 кв. м.
Продаётся объект незавершенным строительством готовность 35%, все техусловия и разрешения действующие. Гостиничный комплекс в Краснодарском крае, город Геленджик, село Кабардинка, площадь участка: 9979,0 кв. м., площадь застройки: 1920,0 кв. м. (19%), общая площадь здания: 6273,3 кв. м., в том числе: Площадь номеров гостиницы: 4033,1 кв. м. Площадь холлов, коридоров и лестниц здания: 1354,8 кв. м. Площадь служебных и технических помещений здания: 290,6 кв. м. Площадь летних помещений (террасы, балконы, лоджии, кровля): 1788,8 кв. м. Количество номеров гостиницы: стандарт: 152 номера, двухкомнатные: 9 номеров. Количество мест в гостинице: 170 мест. Площадь бассейна для взрослых: 160,0 кв. м. Площадь джакузи: 13,7 кв. м. Площадь бассейна для детей: 29,1 кв. м. Окончательная цена оговаривается при встрече на объекте. Звоните с удовольствием покажем Вам данный объект. АН''Стройкомплекс'' улица М.Горького 130